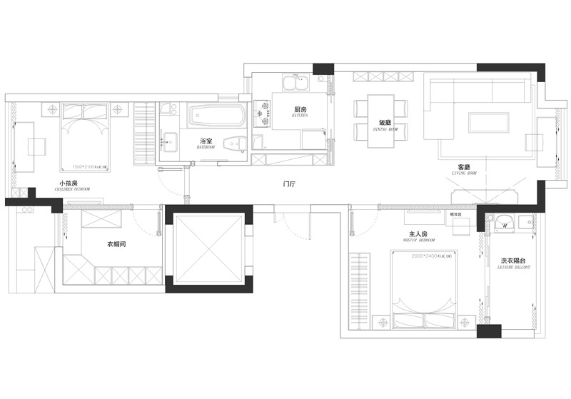
樓盤:坐標城
風格:美式
房型:普通
區域:洪山區
面積:110㎡
風格:美式 類型:普通 面積:91m2
風格:美式 類型:住宅 面積:130m2
風格:簡歐 類型:住宅
風格:美式 類型:住宅 面積:100m2
風格:美式 類型:住宅
風格:美式 類型:住宅 面積:92m2
風格:北歐 類型:住宅 面積:126m2
風格:美式 類型:住宅 面積:90m2
風格:混搭 類型:住宅
風格:北歐 類型:住宅
武昌總部地址:武昌區漢街總部國際D座701室
漢口高端店:江漢區泛海國際soho城7棟702室
光谷店地址:光谷萬科中心2106室
企業QQ:400-806-3002
網站備案號:鄂ICP備13008585號-2