指南针炒股神器三把锁-今天哪只股票可以买入-【东方资本】,最有潜力的军工股是谁,直播推荐股票犯法吗,股票配资平台查询网

當前位置:首頁 > 客戶見證 > 正文

BHKJ-混搭小窩

捌號空間 / 2018-03-31 瀏覽:1264 次
家裝日記
樓盤:合匯佳苑
裝修進度:墻面
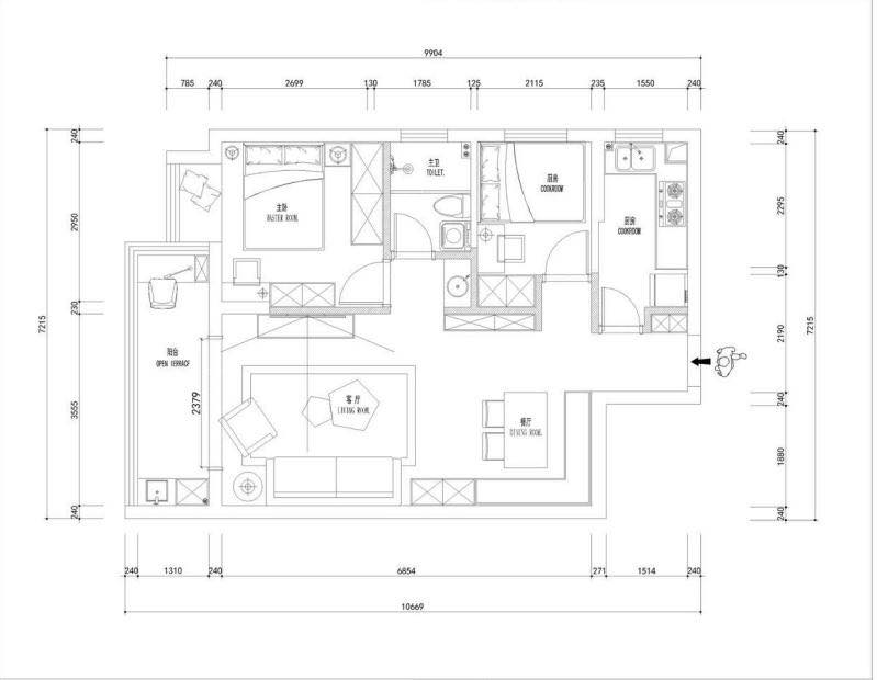
戶型:兩室兩廳
裝修風格:簡約
裝修方式:半包
顏色:白色
樓梯:
前期設計:
http://www.deyi.com/forum.php?mod=redirect&goto=findpost&ptid=11333087&pid=120244198
主體
改: http://www.deyi.com/forum.php?mod=redirect&goto=findpost&ptid=11333087&pid=120244211
水電驗收: http://www.deyi.com/forum.php?mod=redirect&goto=findpost&ptid=11333087&pid=120244216

*~*~*~*~*~*~*~*~*~*~*~*~*~*~*~*~*~*~*~*~*~*~*~*~*~*~*~*~*~*~*~*~*~*~*~*~*~*~*~*~*~*~
*~*~*~*~*~*~*~*~*~*~*~*~*~*~*~*~*~*~*~*~*~*~*~*~*~*~*~*~*~*~*~*~*~*~*~*~*~*~*~*~*~*~
*~*~*~*~*~*~*~*~*~*~*~*~*~*~*~*~*~*~*~*~*~*~*~*~*~*~*~*~*~*~*~*~*~*~*~*~*~*~*~*~*~*~

之前在北京,家里期房下來了,于是回武漢開始裝修大業,昨天剛開工,開貼做個記錄,零零碎碎的,希望最后能夠順利完工!!

    
    日記結構占樓完畢,發現有20多樓,希望我有精力完善這個大工程

    光棍節回漢就開始緊鑼密鼓的找裝修公司了,直接半包也沒考慮清包和全包,主要一個怕累一個怕被坑。直接在得意家推送的四家裝修公司,由于剛回武漢,工作也剛剛落定,很多要忙的,也沒有一家家的跟裝修公司預約談設計,只有兩家ps和bhkj.正好是雙十一,先把ps的優惠定了,最后設計師出圖討論細節之后,綜合考慮還是選擇了bhkj,最后跟小胖(ps)退定金還挺不好意思的。因為設計師小王考慮細節很仔細,主要我媽還想搞個高低床被小王說服了,我本來想把客廳隔出來做個臥室,因為原來的臥室太小了,也被小王說服了。櫥柜我想白色,我媽不喜歡,還是小王出馬,哈哈。同意用白色的了~

  11.15號最終選定裝修公司,還挺快的,一周的時間就定了,19號簽了合同交了第一筆工程款,選定26號開工也就是昨天,開工之后設計師領著去定了瓷磚和門還有封陽臺的.封陽臺本來準備300一平的,最后看的好的定的800一平的啊,我的銀子。。。。



前期設計


    原始戶型圖我好像沒得,上一個修改之后的把。原來的房型是臥室都挺小的,就是客廳和餐廳大,改造后主臥區往客廳推了,右側往衛生間推,擴大主臥空間。衛生間,次臥,廚房同一水平往客廳推,擴大空間,今天我忽然發現,衛生間的干區鏡子正對著主臥的大門。。我勒個去哦,早上跟設計師發消息了,看能怎么改吧。


被說服,忽略主臥的大門對著衛生間干區的鏡子 

現在覺得前期的設計和規劃特別重要,之前設計的都是基于不裝暖氣片,但是隨著裝修的深入和跟左鄰右舍的溝通,最后還是覺得裝上暖氣片。由于房間面積小,怎么合理放置是一個比較大的問題,客廳面積接近26平,暖氣片建議分兩組的,有涉及到要不要放沙發后面的問題,陽臺和客廳之間的門要不要裝用玻璃隔還是窗簾又是個問題,次臥的門已經由于前期設計的原因 如果這次裝門后,次臥的門沒有留門垛只能變成外開。一瞬間都不想裝暖氣片了!
這周末暖氣設計師和我的裝修設計師碰面一起商討一下~



主體拆改

廣 告

20171127:

昨天在物業辦了裝修的手續,今天師傅開始避水測試了,如果沒有問題就開始拆墻了,因為你動工之后有問題的話,物業是不管的哦~之前有一處空鼓已經在物業那邊記錄了。



20171128:
自己沒去檢查,嚴經理在群里發了圖片沒有漏水,明天開始拆墻了~~~


20171203:
2號墻拆完了,3號進材料,泥工師傅請兩天假,我給批了。
場地很干凈,看了下覺得還挺不錯的。


20171206:
泥工終于進場了。拉的鋼筋吧~






20171208:
終于拆改完啦~看著小屋子一天天變個樣還是很興奮滴~








本來覺得很空曠的小屋子,瞬間覺得變小了一圈

20171212:
更新一下把,次臥的拆改發現問題,本來臥室是外擴但是發現門洞往里推進了,門邊不能做7字行的柜子,及時通知設計師和項目經理后期需要修正。

繼續,拆改完成之后暖氣進場了~60平的暖氣大概4個暖氣片,9點進場,下午5點結束,非常果斷迅速,先給個贊~
然后后續收費問題也說清楚了,一個煙道孔自己找人打,還有默認1米的煙道要加長,另外收費,幾十塊錢。還送一個前置凈水器。不錯,裝修公司一個后置的,我凈水器就不用買了。










水電改造 20171220

12月20號驗收了,拖欠了好多天,今天終于抽空上傳圖片了,說實話,水電這塊是我比較關注也是裝修中的重頭戲,所以看到最后的成果還是挺欣慰了,雖然整個項目時間拖的久了點。。。

材料的照片,都是雙十一升級過的。





水電走線,鎖扣底盒,管蓋保護,強弱電交叉處抗干擾過橋處理,熱水管保溫套處。














試壓1個壓,打壓半小時無掉壓現象




整個流程都比較規范,有監理檢測,我上班,我媽去的,在場解釋一些工藝,最后出驗收單評定表,贊一個。



http://www.deyi.com/thread-11333087-1-1.html

?

30秒在線預算報價

×

在線預約

×
免費咨詢 索取報價
返回頂部
全國服務熱線 400-806-3002
免費報價