指南针炒股神器三把锁-今天哪只股票可以买入-【东方资本】,最有潜力的军工股是谁,直播推荐股票犯法吗,股票配资平台查询网

當前位置:首頁 > 客戶見證 > 正文

金沙泊岸 新家養成記

捌號空間 / 2018-06-30 瀏覽:144 次

裝修日記原帖:http://www.deyi.com/thread-11878451-1-1.html


家裝日記

樓盤:

金沙泊岸
裝修進度:拆改
戶型:三室兩廳
裝修風格:現代
裝修方式:半包
顏色:原木
裝修公司: BHKJ
設計師:劉趙俊

項目經理:徐飄陽

開工時間:2018年6月底
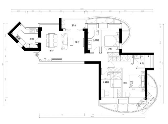
平面布局圖:
微信截圖_20180621203316.jpg 
金沙泊岸項目地段不錯,出小區就是沙湖公園,離漢街不遠,附近有成熟的商業配套,離麥德龍步行也在10分鐘內。 項目里面的環境還不錯。 就是戶型是真的硬傷。 承重墻是真的好厚好厚,>40cm ;   飄窗全部不能充分利用,廚房異形。 平面布局的方案,從開始設計到開工,找了好幾家公司,弄了差不多10個版本,最后還是選了一個實用性較高的布局。  不奢望最后的效果亮眼,功能能基本滿足就好。

微信圖片_20180621205558.jpg微信圖片_20180621205550.jpg微信圖片_20180621205543.jpg微信圖片_20180621205537.jpg微信圖片_20180621205531.jpg微信圖片_20180621205306.jpg微信截圖_20180621205724.jpg 


?

30秒在線預算報價

×

在線預約

×
免費咨詢 索取報價
返回頂部
全國服務熱線 400-806-3002
免費報價